4-bedroom apartment sold
Arden Oak, 581 Warwick Road, Solihull, B91 1AW - Offers in Excess of £600,000
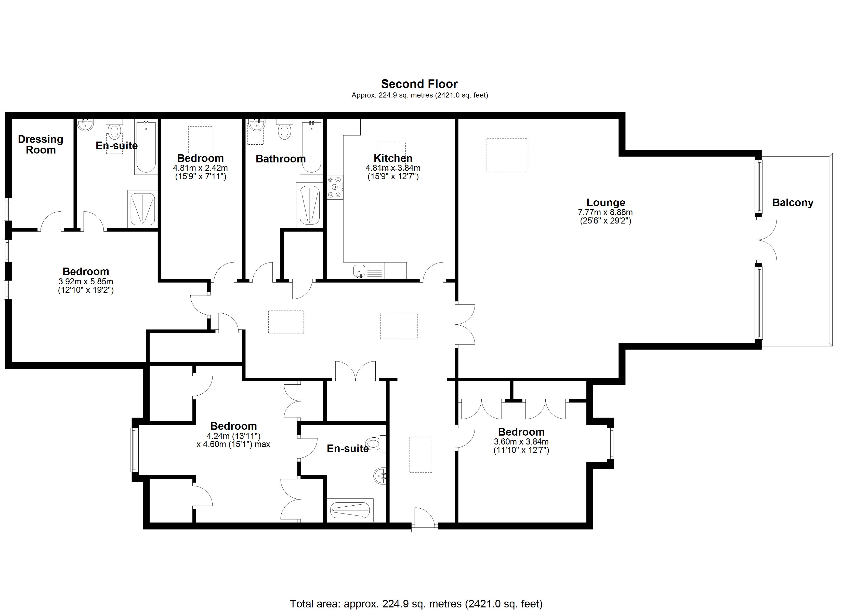
- SECOND (UPPER) FLOOR 4 BEDROOM LUXURY FAMILY PENTHOUSE APARTMENT
- 108 YEAR UNEXPIRED LEASE
- COMMUNAL ENTRANCE HALL WITH LIFT ACCESS
- IMPOSING RECEPTION HALL WITH SECURITY INTERCOM
- SPACIOUS LIVING ROOM WITH DINING AREA
- RECESSED SUN BALCONY OVERLOOKING COMMUNAL GARDENS
- FULLY INTEGRATED BREAKFAST KITCHEN
- 4 BEDROOMS - DRESSING ROOM
- EN-SUITE BATHROOM - EN-SUITE SHOWER ROOM
- FAMILY BATHROOM
- GAS CENTRAL HEATING - DOUBLE GLAZING
- 2 SECURE UNDERGROUND PARKING SPACES WITH LIFT ACCESS
- STORAGE CELLAR - COMMUNAL GARDENS
- NO CHAIN
Overview
Apt 8 Arden Oak is a most substantial, well-proportioned, tastefully presented, 4 bedroom, second floor, family penthouse residence, covering a living area in excess of 2,400 square feet. Being most conveniently situated within comfortable strolling distance of Solihull town centre, Touchwood and Solihull station, this delightfully airy and spacious apartment, further benefits from lift access to the secure underground carpark, a 108 year unexpired lease and no upward chain.
Vendor Comments
We were looking for a property that was comparable to our 4-bed family home to retire to close to Solihull town centre. We were lucky enough to buy our wonderful penthouse apartment from new and the developers even allowed us to select our two preferred underground parking spaces right next to the door.
As soon as we walked into the spacious hall, we knew this was going to be perfect for us. We didn’t want somewhere that felt too small and this apartment certainly always feels very roomy indeed. There’s been plenty of space for the grandchildren to stay and entertaining in the large lounge area has been a constant joy.
It’s been a perfect location for us, right next to the bus stop, as well as only a five minute walk to the station and town centre. It has also been great to have the security of living on the top floor and being able to lock up and go whenever we have travelled abroad.
Tenure
We have been advised that The property is LEASEHOLD with 108 years unexpired (125 years from 2005) and is subject to an annual ground rent of £250 paid in two instalments, and an annual service charge of £4,314 paid in two instalments. You should check this with your legal advisor before exchanging contracts.
Local Authority
Solihull Borough Council - Band G

Misrepresentation Act 1967
These particulars are believed to be correct but their accuracy is not guaranteed nor do they form part of any contract.