3-bedroom semi-detached house sold
Stratford Road, Shirley, Solihull, B90 4AQ - Asking Price £300,000
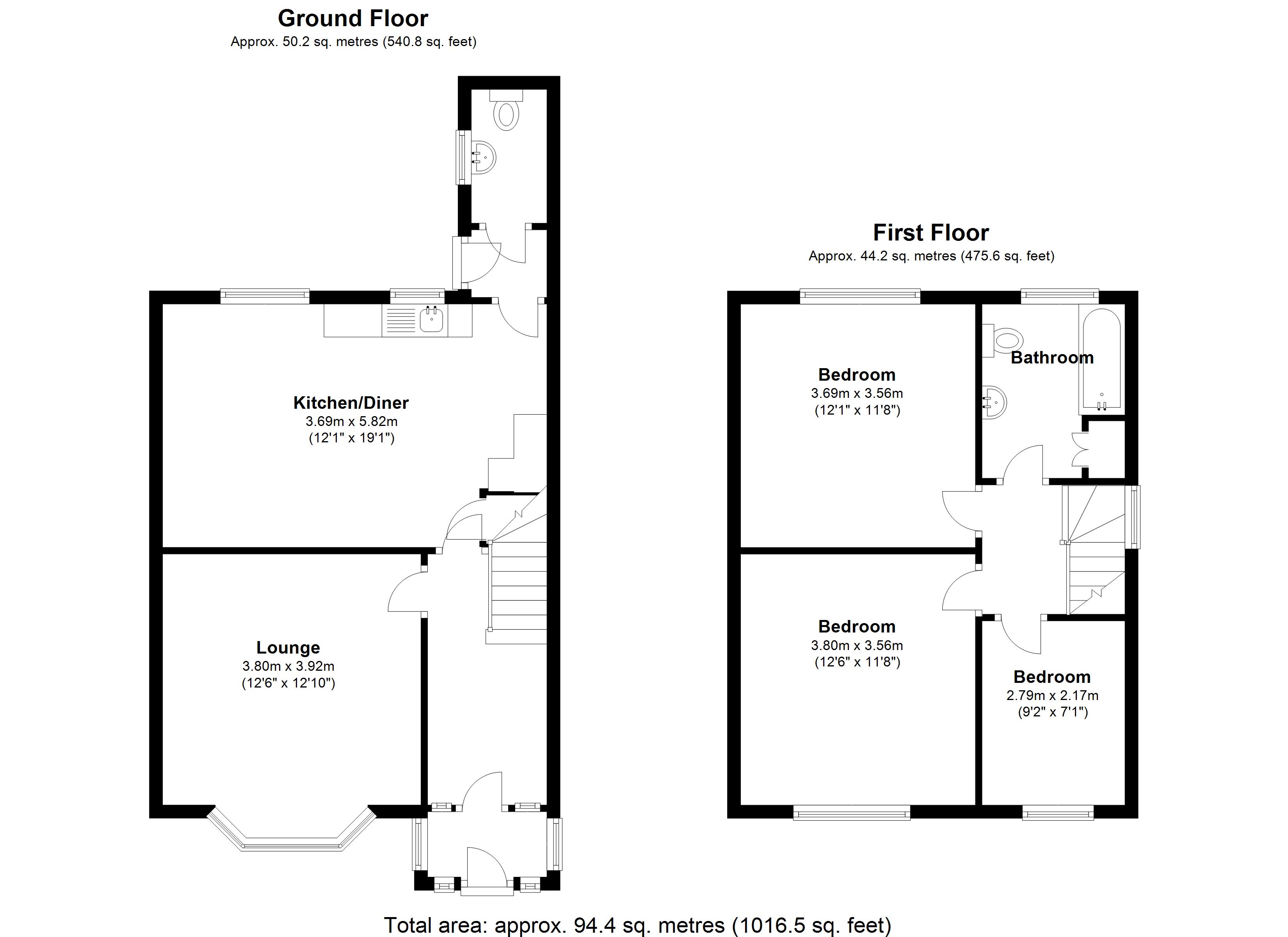
- ENTRANCE PORCH - RECEPTION HALL
- LOUNGE - RE-FITTED DINING KITCHEN
- REAR LOBBY - WC
- 3 BEDROOMS - RE-FITTED BATHROOM
- GAS CENTRAL HEATING - DOUBLE GLAZING
- ESTABLISHED REAR GARDEN - DRIVEWAY PARKING
- FREEHOLD
Overview
402 Stratford Road is a much improved, tastefully presented, 3 bedroom, semi -detached family home, being most conveniently situated in this popular residential area.
Vendor Comments
I have enjoyed bringing this house back to life after years of neglect. It is now a lovely family home. There is every amenity you could want all on the doorstep. Supermarkets, doctors surgeries and chemists all a walk away. There is a thriving cafe culture, with trendy bars, restaurants and social clubs, meaning no expensive taxis are needed. Not to mention the excellent schools in the area.
Local Authority
Solihull Borough Council
Click for EPC Information
Misrepresentation Act 1967
These particulars are believed to be correct but their accuracy is not guaranteed nor do they form part of any contract.

















