3-bedroom semi-detached house sold
Bryanston Road, Solihull, B91 1EN - Asking Price £450,000
- RECEPTION HALL
- LOUNGE - DINING ROOM
- FITTED KITCHEN - UTILITY
- GARDENERS WC
- 3 BEDROOMS
- BATHROOM
- GAS CENTRAL HEATING - DOUBLE GLAZING
- ESTABLISHED REAR GARDEN
- GARAGE - DRIVEWAY PARKING
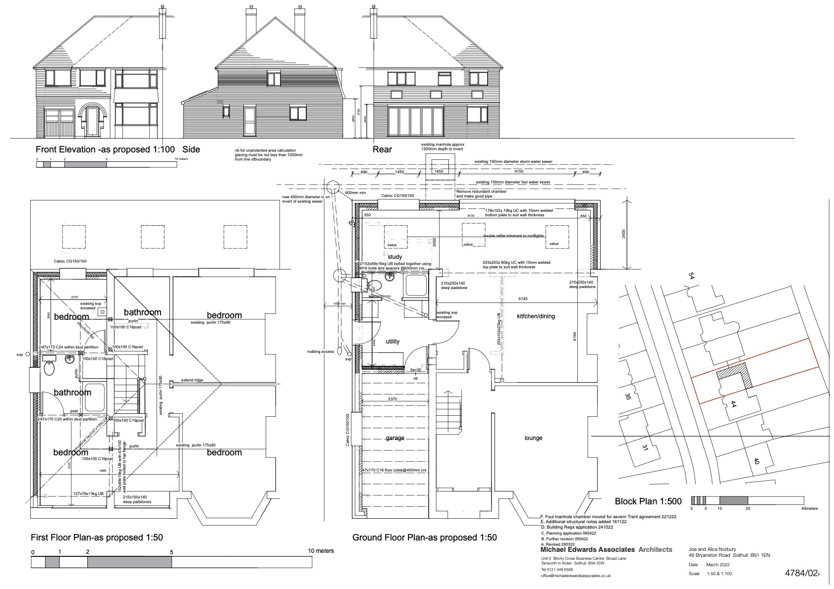
- PLANNING PERMISSION GRANTED FOR A 2-STOREY SIDE EXTENSION AND SINGLE STOREY REAR EXTENSION - REF: PL/2022/00734/MINFHO
Overview
46 Bryanston Road is a well-proportioned, traditional, 3 bedroom, semi-detached family home, being conveniently situated in this highly desirable residential area and benefitting from planning permission for a 2-storey side extension and single storey rear extension offering 4 double bedrooms, ensuite and larger family bathroom.
Vendor Comments
'This has been a wonderful home for the last three years. We have worked hard to develop a plan and obtain planning permission, which would create an amazing open plan family living area and a further bedroom with an ensuite.
It is a great location for schools, transport and Solihull town centre. It is an ideal location for commuting, with a 15 minute walk to the station for a quick train to Birmingham or a direct line into London and not far from the M42.
The large garden has been the focus of our attention and brought us a lot of joy, we are now looking to move to the countryside for more vegetable growing space and potential for multi generational living.
We hope another family will be as happy here as we have been.'
Local Athority
Solihull Borough Council - Tax Band E
Tenure
We have been advised that the property is FREEHOLD, however you should check this with your legal advisor before exchanging contracts.
Click for EPC Information
Misrepresentation Act 1967
These particulars are believed to be correct but their accuracy is not guaranteed nor do they form part of any contract.


























